Basis kenmerken
- Inhoud ca. 353 m³
- Woonruimte ca. 94 m²
- Perceel ca. 135 m²
- 3 slaapkamers
- Energielabel A
- Ligbad, toilet, douche, wastafel, wastafelmeubel, whirlpool
- Parkeren, Openbaar parkeren
- Aanvaarding In overleg
- Dakisolatie, muurisolatie, vloerisolatie
- CV Ketel uit 2025
- Bouwjaar 1975
- Geen garage
- Airconditioning, dakraam, glasvezel kabel, zonnepanelen
- Openbaar parkeren
Beschrijving
Starters opgelet! Zoek niet verder, want deze woning gaat je blij maken! Met 3 slaapkamers, 7 zonnepanelen én energielabel A is dit een ideale kans voor wie comfortabel en energiezuinig wil wonen. De onderhoudsarme achtertuin en de aangebouwde stenen berging aan de voorzijde maken het geheel helemaal compleet. Enthousiast? Bel snel voor een afspraak! Indeling: Begane grond: Entree, hal, toiletruimte met hangcloset en fonteintje, trapopgang naar de verdieping, trapkast en toegang tot de berging aan de…
Starters opgelet!
Zoek niet verder, want deze woning gaat je blij maken! Met 3 slaapkamers, 7 zonnepanelen én energielabel A is dit een ideale kans voor wie comfortabel en energiezuinig wil wonen.
De onderhoudsarme achtertuin en de aangebouwde stenen berging aan de voorzijde maken het geheel helemaal compleet.
Enthousiast? Bel snel voor een afspraak!
Indeling:
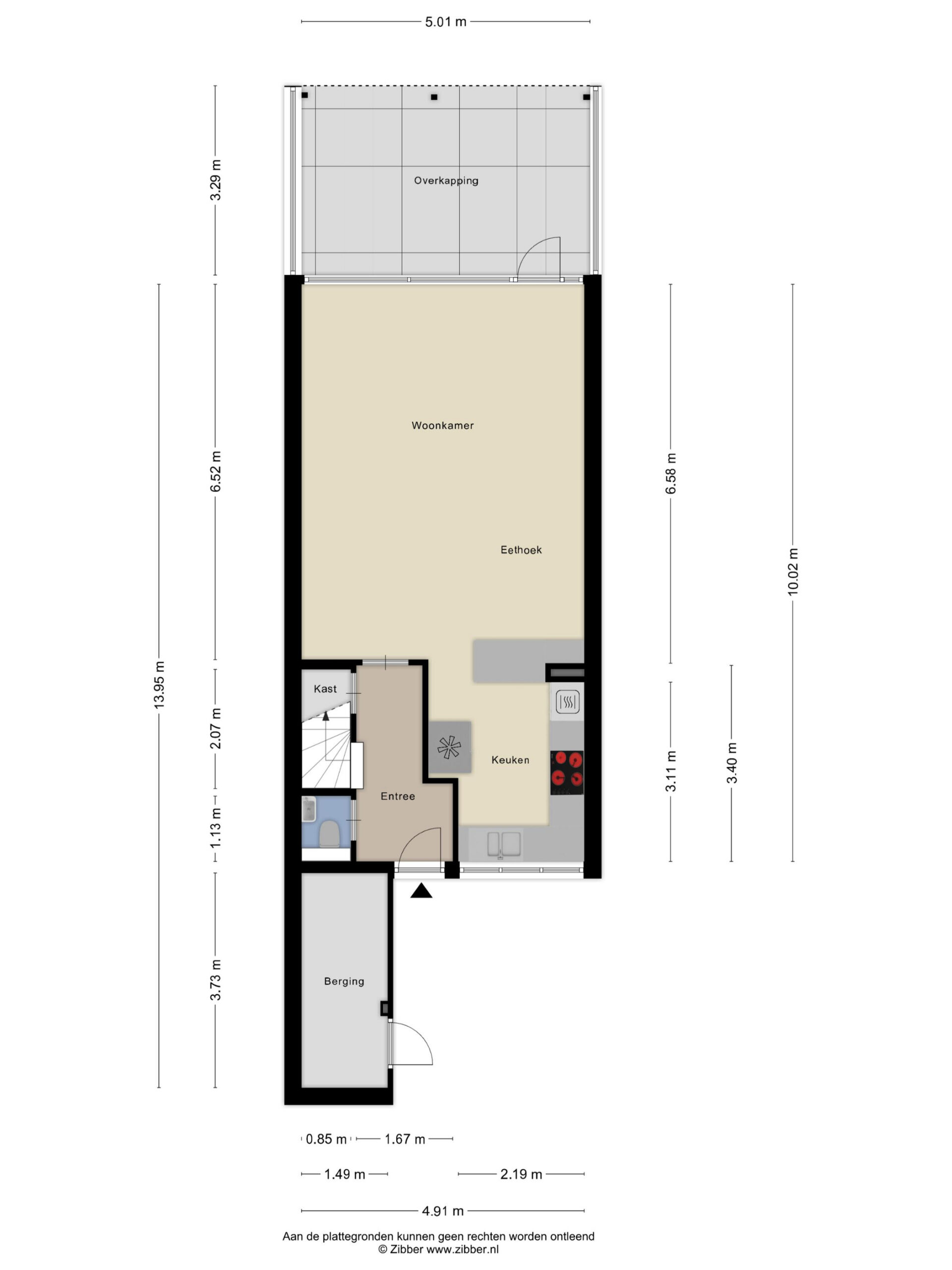
Begane grond:
Entree, hal, toiletruimte met hangcloset en fonteintje, trapopgang naar de verdieping, trapkast en toegang tot de berging aan de voorzijde en de woonkamer. De tuingerichte woonkamer beschikt over een fraaie laminaatvloer, grote raampartijen en een toegangsdeur naar de achtertuin, waardoor de ruimte zeer licht en uitnodigend is. De halfopen keuken is uitgerust met een praktische ontbijtbar en diverse inbouwapparatuur, waaronder een vaatwasser, oven, magnetron, inductiekookplaat en afzuigkap. De begane grond is voorzien van een laminaatvloer in combinatie met een tegelvloer.
Verdieping:
Overloop met toegang tot drie slaapkamers, een bergkast met witgoedopstelplaats, omvormer zonnepanelen en de cv-installatie, evenals de badkamer. Slaapkamer I (ca. 12 m²) is gelegen aan de voorzijde en voorzien van een airco en een Velux dakraam met bediening aan zowel de boven- als onderzijde. Slaapkamer II (ca. 6 m²) en Slaapkamer III (ca. 12 m²) bevinden zich aan de achterzijde en beschikken eveneens over een Velux dakraam met dubbele greep. De badkamer is modern uitgevoerd en uitgerust met een ligbad met whirlpoolfunctie, een ruime douchecabine met geïntegreerde regendouche, handdouche, massagejets, ledverlichting, radio en wifi, een hangcloset en een wastafelmeubel. De gehele verdieping is voorzien van een laminaatvloer, met uitzondering van de badkamer.
Tuin:
De onderhoudsarme achtertuin ligt op het oosten en is voorzien van een strak kunstgazon en een fijne overkapping. Hier kun je het hele jaar door heerlijk genieten, of je nu van de ochtendzon houdt of juist beschut wilt zitten. Ook de voortuin is praktisch ingericht: volledig bestraat en uitgerust met een laadpaal.
Locatie:
De woning is gelegen in een kindvriendelijke omgeving met diverse voorzieningen binnen handbereik. Zo vind je een kinderdagverblijf, peuterspeelzaal en basisschool in de directe nabijheid. Voor ontspanning en recreatie ligt het populaire recreatiegebied De Berendonck op korte afstand, waar je kunt genieten van zwemplezier en heerlijke wandelingen in de buitenlucht. Daarnaast bevinden winkelcentrum Dukenburg en het bus- en treinstation zich op loopafstand. Het bruisende centrum van Nijmegen bereik je in slechts 10 autominuten. Ook de ligging ten opzichte van de snelwegen A73 en A50 is bijzonder gunstig, waardoor de bereikbaarheid uitstekend is.
Kenmerken:
• Bouwjaar 1974
• Woonoppervlakte ca. 94 m²
• Inhoud ca. 353 m³
• Perceel 135 m²
• 3 slaapkamers
• Dubbel glas
• Cv-ketel 2025
• Airco
• Energielabel A
• 7 zonnepanelen 2020
• Vloerisolatie
• Dakisolatie
• Muurisolatie
• Laadpaal 2024
• Achtertuin op het oosten
• Berging
• Kindvriendelijke woonomgeving
• Aanvaarding in overleg
• Makelaar: Raymond Pulles
Media
Team Pulles staat voor je klaar
Ben je op zoek naar een betrokken makelaarsteam dat zich 100% inzet voor jouw belang? Neem direct contact met ons op of vul onderstaand contactformulier in.

Garantie zonder voorbehoud financiering
Contact opnemen