Basis kenmerken
- Inhoud ca. 210 m³
- Woonruimte ca. 64 m²
- 2 slaapkamers
- Energielabel C
- Toilet, wastafel, inloopdouche
- Parkeren, Openbaar parkeren, betaald parkeren, parkeervergunningen
- Aanvaarding In overleg
- Dakisolatie, muurisolatie, dubbel glas
- Bouwjaar 1976
- Geen garage
- Tv kabel, lift
- Openbaar parkeren, betaald parkeren, parkeervergunningen
Beschrijving
Droom je van wonen in het bruisende hart van Nijmegen, met een schitterend uitzicht op het Kronenburgerpark en de St. Stevenstoren? Op de 13e – en tevens hoogste – woonlaag vind je dit stijlvolle appartement met twee slaapkamers, een balkon en een inpandige berging. Hier geniet je van de rust en het comfort van een elegant thuis, terwijl de levendigheid van de stad altijd binnen handbereik is. Hebben we je enthousiast gemaakt? Bel snel voor een afspraak! Indeling: Entree:…
Droom je van wonen in het bruisende hart van Nijmegen, met een schitterend uitzicht op het Kronenburgerpark en de St. Stevenstoren?
Op de 13e – en tevens hoogste – woonlaag vind je dit stijlvolle appartement met twee slaapkamers, een balkon en een inpandige berging. Hier geniet je van de rust en het comfort van een elegant thuis, terwijl de levendigheid van de stad altijd binnen handbereik is.
Hebben we je enthousiast gemaakt? Bel snel voor een afspraak!
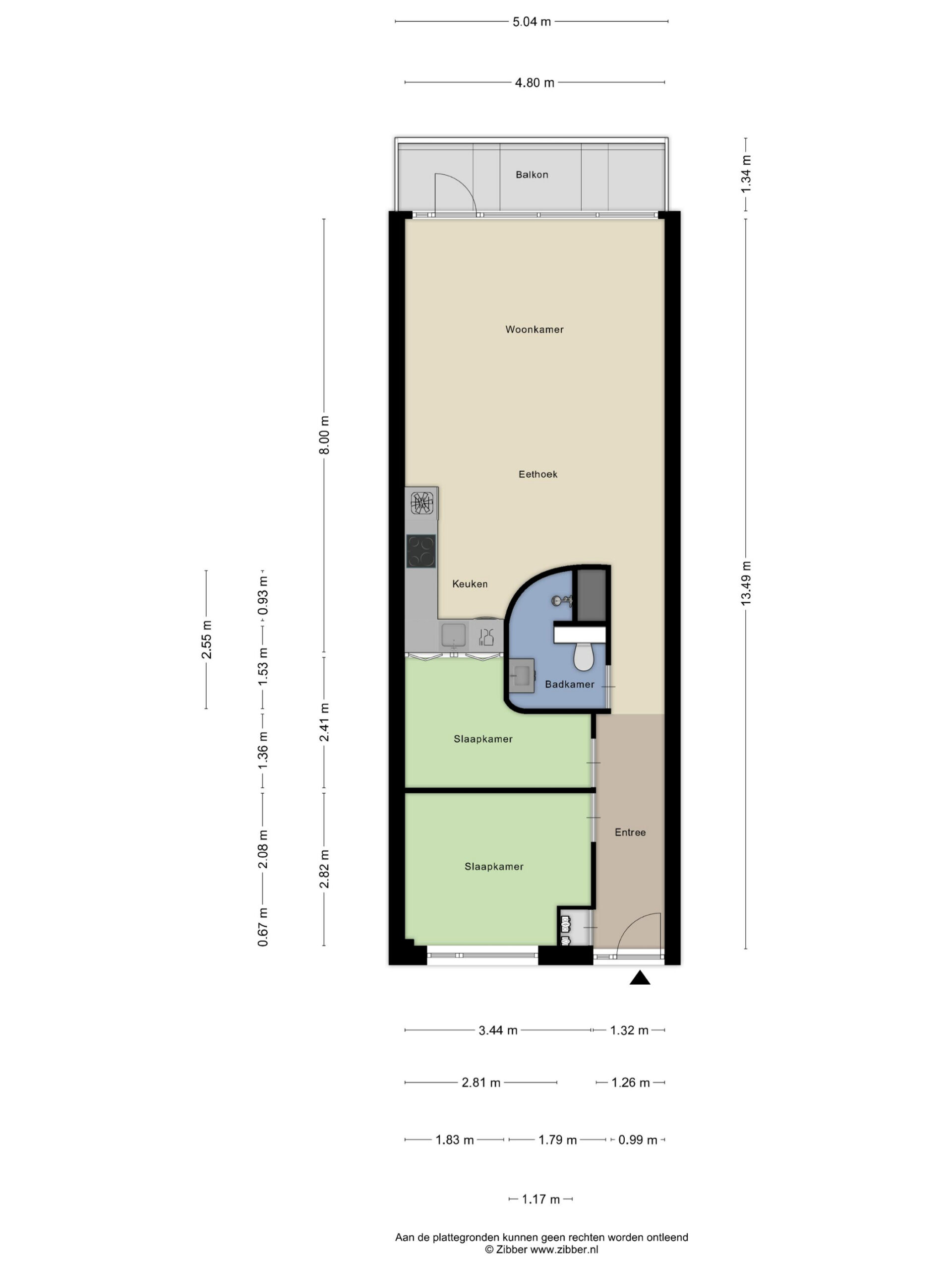
Indeling:
Entree:
Centrale entree met deurbellentableau, intercom, brievenbussen, 2 liften en trappenhuis.
Appartement:
Entree, hal met meterkast en toegang tot alle vertrekken van de woning. Slaapkamer I bevindt zich aan de voorzijde van het appartement. De tweede kamer, die zich uitstekend leent als slaap- of studeerkamer, ligt tussen de woonkamer en slaapkamer I. De royale woonkamer beschikt over grote raampartijen die zorgen voor een prachtige lichtinval en biedt toegang tot het balkon. De moderne open keuken is volledig uitgerust met diverse inbouwapparatuur, waaronder een wasmachine met droogfunctie, een Quooker, een vaatwasser, een gaskookplaat, een afzuigkap, een koelkast en een combimagnetron. De badkamer is ingericht met een inloopdouche, een wastafelmeubel, een toilet en mechanische ventilatie. Het gehele appartement, met uitzondering van de badkamer, is voorzien van een fraaie laminaatvloer die je interieur een warme en eigentijdse uitstraling geeft.
Buiten:
Het appartement beschikt over een fraai balkon met houten vlonderdelen, gesitueerd op het noordoosten. Vanaf hier ontvouwt zich een betoverend uitzicht over het groene Kronenburgerpark en de statige St. Stevenstoren. Bovendien geniet je van een weids panorama over de rivier de Waal, waar de iconische bruggen zich sierlijk over het water buigen.
Berging:
In het souterrain bevindt zich een praktische inpandige berging.
Parkeren:
Parkeren is mogelijk middels een parkeervergunning.
Locatie:
De ligging van dit appartement mag je met recht uitzonderlijk noemen. Recht tegenover het groene en historische Kronenburgerpark geniet je van een prachtig uitzicht. Het levendige stadscentrum van Nijmegen ligt letterlijk aan je voeten, met een breed aanbod aan winkels, sfeervolle cafés, verfijnde restaurants en culturele voorzieningen, waaronder de stadsschouwburg. Het centraal station bereik je binnen enkele minuten te voet, waardoor je profiteert van optimale verbindingen. Daarnaast zijn de uitvalswegen eenvoudig bereikbaar, terwijl ziekenhuizen, de Hogeschool van Arnhem en Nijmegen en de Radboud Universiteit binnen tien minuten per fiets te bereiken zijn.
Kenmerken:
• Woonoppervlakte ca. 64 m²
• Inhoud ca. 210 m³
• Bouwjaar 1976
• 2 slaapkamers
• Inpandige berging
• Balkon op het noordoosten
• Keuken 2019
• Badkamer 2020
• Vloeren 2019
• Energielabel C - geldig tot 2035
• Blokverwarming - boiler 2025
• VvE-bijdrage € 332,03 per maand incl. water
• Stookkosten € 130,91 per maand (voorschot)
• Actieve VvE
• Nabij NS-station
• Centrum Nijmegen
• Aanvaarding in overleg
• Makelaar: Raymond Pulles
Media
Team Pulles staat voor je klaar
Ben je op zoek naar een betrokken makelaarsteam dat zich 100% inzet voor jouw belang? Neem direct contact met ons op of vul onderstaand contactformulier in.

Garantie zonder voorbehoud financiering
Contact opnemen